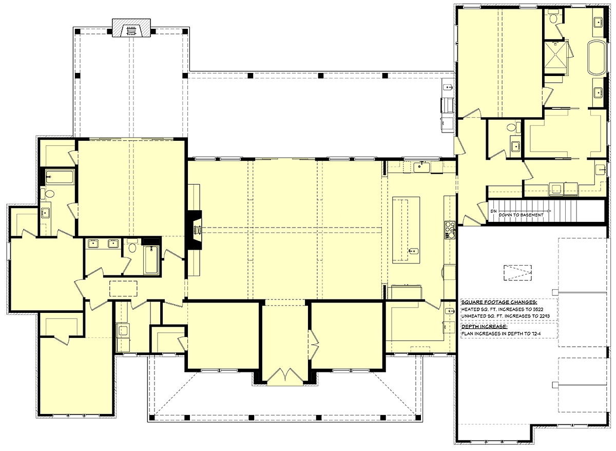
Contemporary Farmhouse Traditional Elevation of Plan 82979 Contemporary Farmhouse Traditional Level One of Plan 82979 Contemporary Farmhouse Traditional Alternate Level One of Plan 82979 Contemporary Farmhouse Traditional Rear Elevation of Plan 82979

 

 

Specifications

  • 3500 Heated Sq Ft
  • 3500 Main Level
  • 5 Bedroom
  • 3.5 Bath
  • 3 Car Garage
  • 100 W x 69 D
Foundation Types:
  • Basement - $395.00
  • Crawlspace - $100.00
  • Slab
  • Walkout Basement - $395.00

Pricing *

  • PDF File: $1,995.00
  • 5 Sets + PDF: $2,245.00
  • Materials List: $250.00
* prices shown w/o any discounts applied